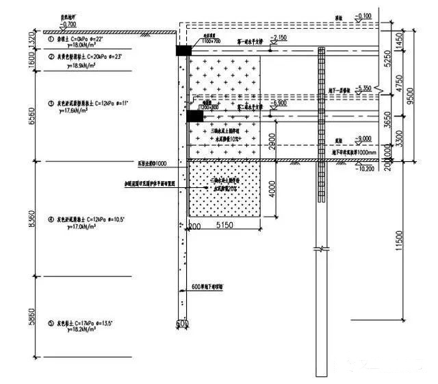
基坑周边被动区土体加固
在软土地基中,当周边环境保护要求较高时,基坑工程前宜对被动区土体进行加固处理,以便提高被动区土体抗力,减少基坑开挖过程中围护结构的变形。采用墩式加固时,土体加固一般多布置在基坑周边阳角位置或跨中区域;必要时,也可以考虑采用抽条加固或满堂加固。加固体的深度范围应从第二道支撑底至开挖面以下一定深度(上海地区的经验一般为开挖面以下 4m),考虑地表有施工机械运行需要时,也可以采用低水泥掺量加固到地面。
通常采用双轴水泥土搅拌桩或三轴水泥土搅拌桩进行被动区土体加固。根据加固深度不同可以选择不同的加固工艺,上海地区双轴水泥土搅拌桩的加固深度一般控制在 18m 以内;加固深度超过 18m 时,采用三轴水泥土搅拌桩。采用水泥土搅拌桩重力式挡墙作为周边围护结构时,被动区土体加固应与重力式挡墙相互搭接,一起施工;采用其他围护结构形式时,围护结构与被动区土体加固之间的空隙采用压密注浆或高压旋喷桩进行填充加固。
场地内有浜土或淤泥质土等极软弱土层分布
由于暗浜分布通常较浅,因此可以采用双轴水泥土搅拌桩进行加固,加固体深度和平面范围应超出所需加固的暗浜的范围。水泥土搅拌桩可以采用各栅布置,换填加固时水泥掺量可以较低,满足施工工艺要求即可;当对加固体强度有一定要求时,水泥掺量较常规的水泥土搅拌桩施工时宜提高 3~5%。
基底深坑处理
出于建筑功能的需要,电梯井和集水井等通常都比普遍基底开挖深度深。对于位于基坑周边的基底深坑或位于基坑中部、但落深较大的基底深坑应预先进行土体加固处理,落深特别大时还需设置板式支护保证基底深坑的侧壁稳定性。基底深坑加固应综合考虑基坑土体残余应力、落深深度、地下水处理等因素,按重力式挡土墙进行加固体深度和厚度的估算,必要时应进行封底加固处理。
基坑周边运输通道区域
基坑工程施工势必需要大量土方开挖以及运输的车辆的进出,因此在基坑工程开挖前,施工单位应进行周密的现场施工组织设计,并根据场地和市政条件确定土方运输的出入口。
最新产品
同类文章排行
- 港珠澳大桥:世界级超级工程背后的故事
- 二战以来新加坡特大倒塌灾难 背后缘由引人深思
- ATM取现政策调整 2016各大银行新政策调整一览表
- 让文革新贵王洪文发迹的国棉十七厂,后来怎么样了?
- 现有规范对植筋锚固深度过于严苛?
最新资讯文章
您的浏览历史








